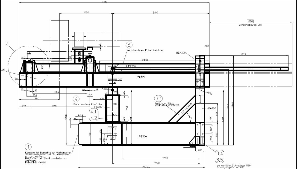
Konstruktion
Unser Arbeitsschwerpunkt ist die Kombination methodischer Konstruktion und die CAD Ausführungskonstruktion. Wir haben in vielen Branchen langjährige Erfahrungen, welche wir regelmäßig auch branchenübergreifend optimal zum Einsatz bringen.
Gerne bearbeiten wir Ihren Auftrag als Dienstleister.


